Design School Commercial Project- Wiscorp Office Space

Project details

This project involves the design and execution of a new corporate office space for Wiscorp. The site is located in downtown La Crosse with a mix of traditional and modern buildings, and the goal of the project is to create a modern and sustainable office space that is both functional and beautiful.

My contributions have been instrumental in shaping the overall vision and design of the project. I oversaw every aspect of the interior architecture, construction documents and furnishing and styling.

Area of site

3000 SF

Date

2023

Status of the project

New Constrcution

Tools used

Photoshop, Revit, Enscape

My sketches

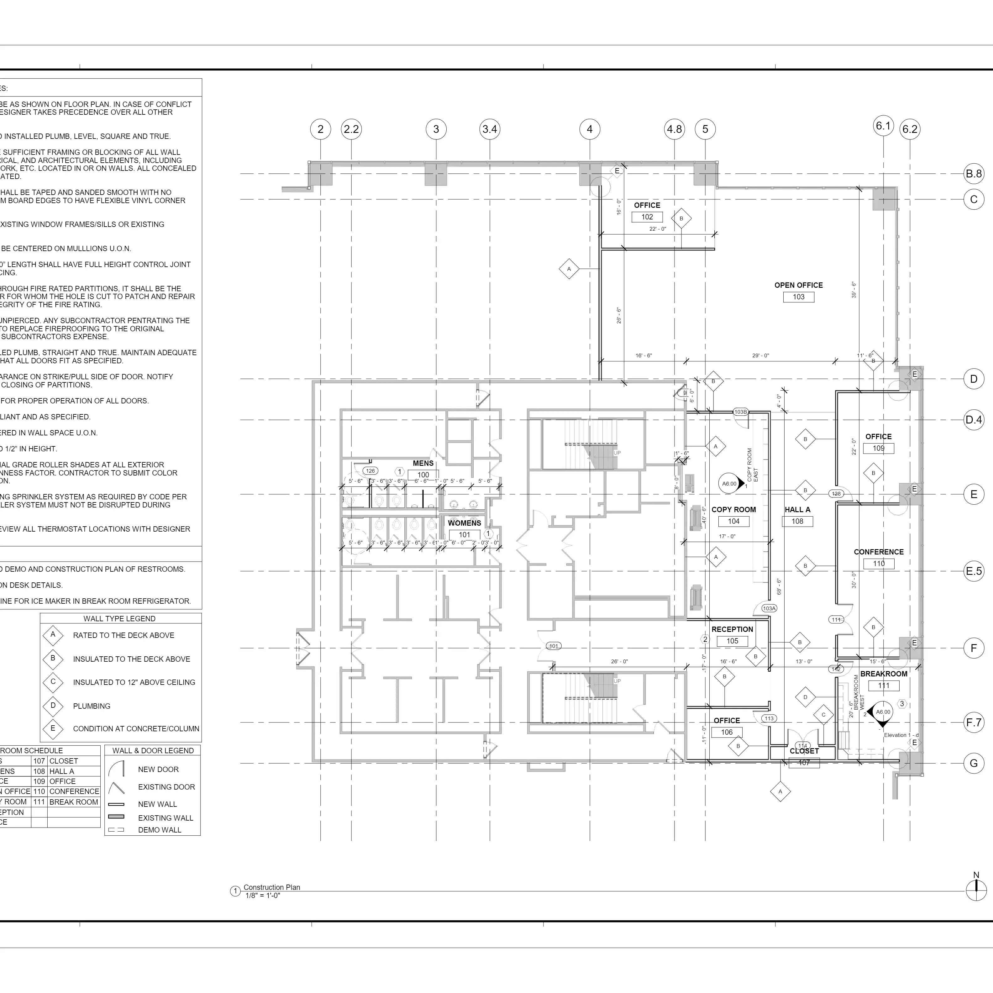
CONSTRUCTION DOCUMENTS FOR THE CONSTRUCTION PLAN
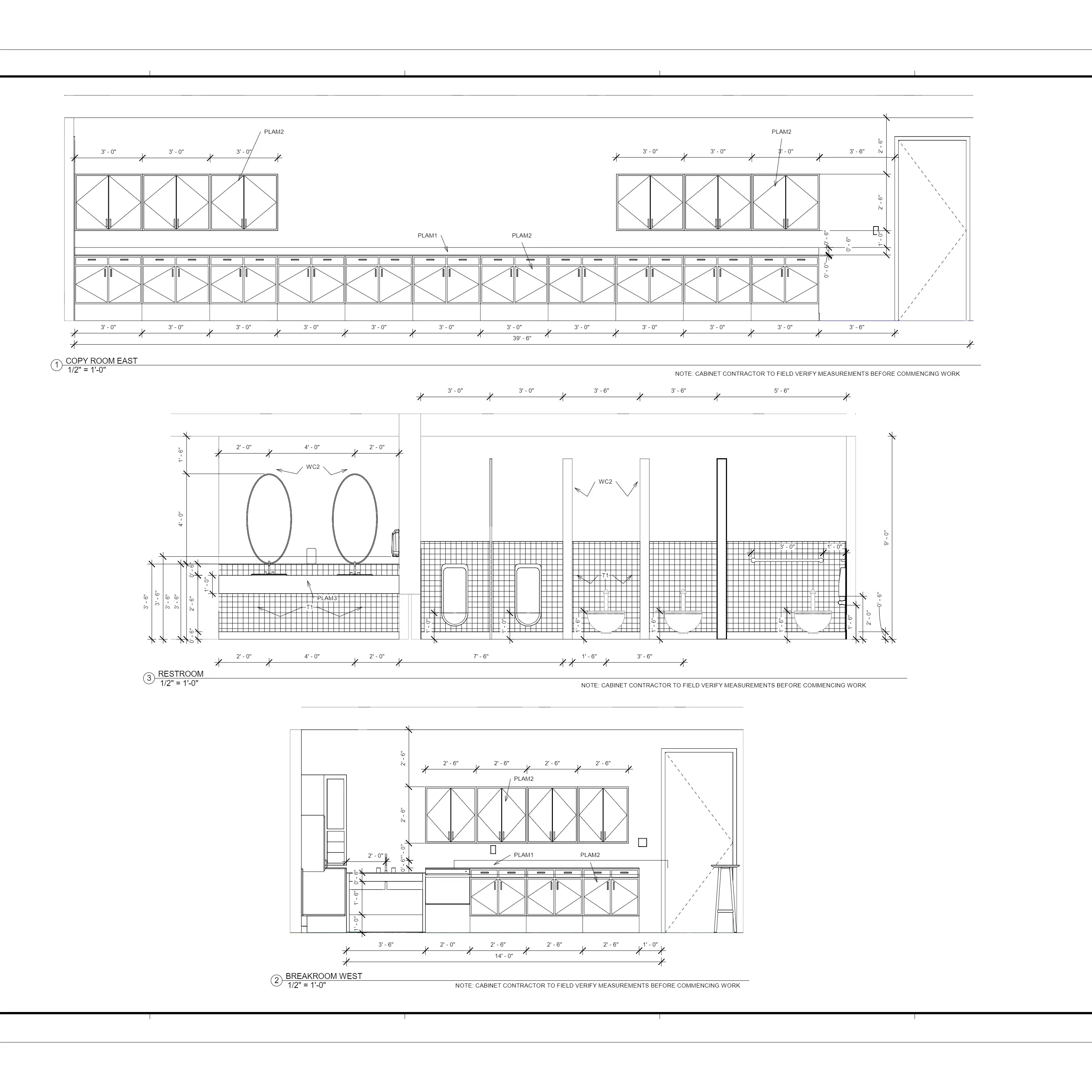
ELEVATIONS OF COPYROOM, RESTROOM AND BREAKROOM